Les Grandes Roches

6110 route de Thorenc - 06620 Gréolières-les-neiges - Alpes-Maritimes - Ref 7438 - Sur notre site depuis 2025
Gite de groupe Les Grandes Roches
Gite de groupe Les Grandes Roches
Album photos Vidéo du gite Plan de la structure Ajouter à votre selection
Capacité
Jusqu'à 30 personnes

Composition
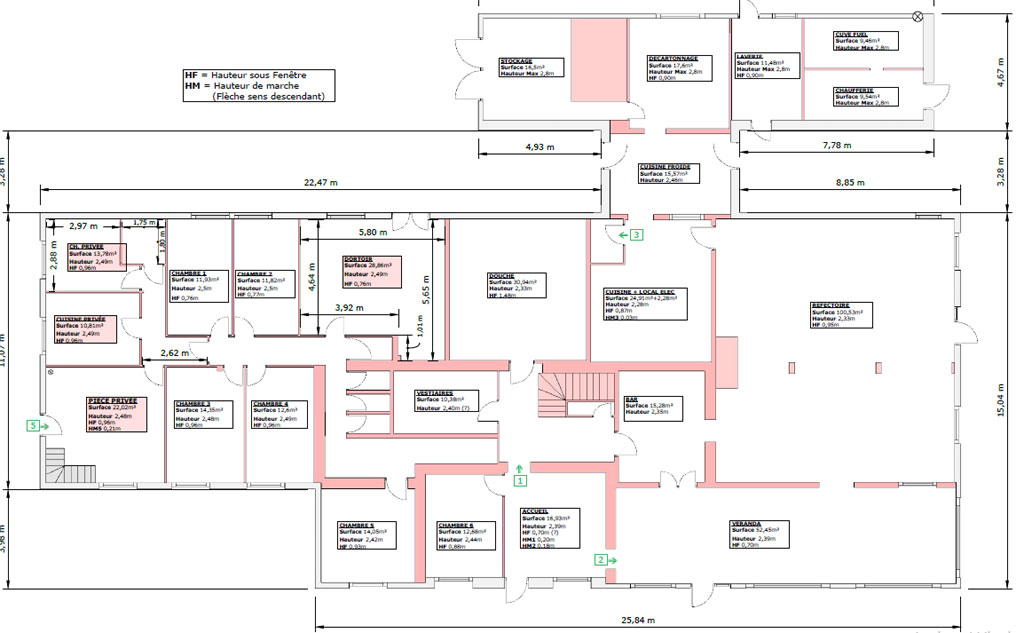
Tiers-lieu offrant le confort de 850 m² d'habitat et 10 chambres, 4 salles d'eau, 10 WC
. Grande salle en rez-de-chaussée avec cheminée - 100 m² et 50 personnes assises (jusqu'à 100 personnes debout)
. Véranda attenante à la grande salle donnant de plain-pied dehors - 50 m²
. Possibilité d'une troisième grande salle à l'étage pour 40 personnes - 75 m²

Détail couchage
3 lits doubles - 6 lits simples - 14 x lits superposés - 2 lits bébé à disposition

Location :Week-end / Nuit
Formule(s) :Demi-Pension / Pens. compl. / Pt déj. / Gestion libre
Ouverture :Ouvert toute l'année

Classement / Label
Accueil vélo

Agrément
Jeunesse et Sports
Education Nationale

Sécurité incendie
Avis favorable de la commission de sécurité
Dernière visite le 29 novembre 2022 (validité 3 ans)

Présentation
À 1h de Nice et de Cannes, situé au milieu d'une vaste plaine entourée de montagnes, les Grandes Roches vous accueillent dans l'écrin naturel des Préalpes pour une expérience inoubliable riche de sens.
Créez un séjour ou un évènement à votre image, dans un tiers-lieu de la transition écologique : constructions et aménagements en matériaux naturels, eau chaude solaire, chauffage au bois, espace maraicher bio, cuisine de saison végétarienne et cuisine des fleurs, simples et sauvages, approvisionnement en circuits courts, forêt-jardin, jardin des simples, compost, toilettes sèches à l'extérieur, abri vélos, espèces protégées à observer, réserve internationale des ciels étoilées... Nous sommes à votre disposition pour concevoir un programme d'animations pour vos invités.
La grande salle et sa cheminée - attenante à la véranda - et donnant de plain-pied dans le parc, offrent une grande modularité intérieur/extérieur. Le parc à la fois ombragé et ensoleillé est équipé de jeux pour petits et grands.
Afin de prolonger la fête en toute tranquillité, jusqu'à 30 couchages sur place seront mis à votre disposition.
Une cuisine professionnelle équipée sera également disponible pour accueillir votre traiteur.
Les Grandes Roches vous attendent pour vivre une expérience tiers-lieu..

Infos et réservation

Contact direct
Nom
Geneviève FONTAINE
Loueur Professionnel

Langues parlées
Langues parlées

Téléphone
04.93.77.51.93

Portable
06.58.18.82.54

Envoyer un E-Mail
Site Internet
scic-tetris.org

Réseaux sociaux



Tarifs

Pas de frais de commission


Gestion libre
Week-end1700 €
Nuit800 €


Nuit
Semaine210 €/pers
Week-end70 €/pers
Nuit35 €/pers


Nuit + Petit-déj
Semaine260 €/pers
Week-end90 €/pers
Nuit45 €/pers


Demi-pension
Semaine450 €/pers
Week-end140 €/pers
Nuit70 €/pers


Pension complète
Semaine600 €/pers
Week-end190 €/pers
Nuit100 €/pers


Autres infos
Des tarifs plus abordables sont proposés en dortoir.

Taxe de séjour :1,07 €/nuit/adulte
Location draps :Literie, couettes, oreillers, linge de lit fournis
Ménage fin de séjour :Inclus
Animaux :Admis
Chèques vacances :Non

Les tarifs sont donnés à titre indicatif par l'annonceur. Pour obtenir le tarif précis aux dates souhaitées, merci de le contacter.
Équipements
Intérieur
Cuisine semi-professionnelle et cuisine professionnelle : Réfrigérateur - Congélateur - Cuisinière - Plaque de cuisson - Four – Micro-ondes - Lave-vaisselle - Vaisselle - Batterie de cuisine
Lave-linge - Sèche-linge
Cheminée - Poêle à bois - Ping-pong - Jeux de société - Bibliothèque
Tables et chaises pliantes pour 50/60 personnes

Multimédia
Wifi – Vidéoprojecteur - Système de visioconférence - Salle sonorisée

Extérieur
Terrasse - Salon de jardin - Chaises longues - Terrain de pétanque - Jeux pour enfants - Abri vélo - Recharge vélo assistance électrique (énergie solaire) - Toilettes sèches

Autres infos
* PMR : Chambre et salle de bain PMR (nous contacter pour + d'infos)
** Pour réceptions : Mange-debout (10) - Tabourets hauts (10) - Tables en bois d'extérieur + banc et chaises (3) - Barnum (capacité 30 personnes) - Four à pizza

Activités
Thématiques du gite
"Aquatique" - "Nature" - "Neige" - "Randonnées" - "Séminaire" - "Vélo"


Activités de plein air
Randonnées - VTC, VTT - Observation ciel étoilé - Trail - Balades botaniques - Observation de la faune (brame du cerf) - Luge d'été - Via-souterrata (via ferrata sous terre)

Activités aquatiques
Pêche - Baignade - Canyoning

Activités hivernales
Ski de fond - Raquettes - Ski Alpin

Autres activités
Proposition d'animations sur le tiers-lieu des Grandes Roches : travail du bois, herboristerie, cuisine des fleurs, simples et sauvages, maraichage, balades biodiversité, soirée astronomie (réserve internationale des ciels étoilés)

Sites touristiques
Réserve des Monts d'Azur - Gorges du Loup - Gorges de la Siagne - Gorges du Verdon - Villages perchés (Gourdon, Saint Paul de Vence, Corsegoules, Gréolières) - Grasse - capital du parfum - Musée International de la parfumerie - Cannes



Cliquez sur une photo pour l'agrandir et ouvrir la galerie
Gite de groupe Les Grandes Roches
Les Grandes Roches Les Grandes Roches Les Grandes Roches Les Grandes Roches Les Grandes Roches Les Grandes Roches Les Grandes Roches Les Grandes Roches Les Grandes Roches Les Grandes Roches Les Grandes Roches Les Grandes Roches Les Grandes Roches Les Grandes Roches Les Grandes Roches



PLAN(S) DE LA STRUCTURE

Cliquez pour agrandir le plan
Agrandir le plan Agrandir le plan