Gites de groupe en Pays de Loire > Maine et Loire > Village vacances Bouëssé La Garenne

Village vacances Bouëssé La Garenne

7 route de Nantes - 49610 Mûrs-Erigné - Maine et Loire - Ref 7497 - Sur notre site depuis 2025
Gite de groupe Village vacances Bouëssé La Garenne
Gite de groupe Village vacances Bouëssé La Garenne
Album photos Plan de la structure Ajouter à votre selection
Capacité
Jusqu'à 55 personnes

Composition
Le Village Vacances, avec ses 600 m², est composé de 12 chambres équipées chacune d'une douche à l’italienne / WC privatifs ; il peut être loué en format 6 ou 12 chambres (= 27 ou 55 couchages).

RDC : 6 chambres soit 27 couchages sous forme de lits simples ou superposés
- chambre 1 PMR - 4 lits simples 90 x 190 (4 couchages)
- chambre 2 - 3 lits en 90x190 (3)
- chambre 3 - 1 lit simple + 2 superposés (= 5)
- chambre 4 - 1 lit simple + 2 superposés (= 5)
- chambre 5 - 1 lit simple + 2 superposés (= 5)
- chambre 6 - 2 lits simples + 1 superposé + 1 lit gigogne de 90 (= 5)

1er étage : 6 chambres soit 28 couchages lits simples ou superposés
- chambre 7 - 2 lits simples en 90 x 190 (= 2 couchages)
- chambre 8 - 1 lit simple + 2 superposés + 1 lit gigogne de 90 (= 6)
- chambre 9 - 3 lits simples + 1 superposé + 1 lit gigogne de 90 (= 6)
- chambre 10 - 3 lits simples + 1 superposé + 1 lit gigogne de 90 (= 6)
- chambre 11 - 2 lits simples + 1 superposé + 1 lit gigogne de 90 (= 5)
- chambre 12 - 2 lits simples+ 1 lit gigogne de 90 (=3)

+ Espace détente côté chambres, avec une bibliothèque enfants/adultes

- Une salle de restauration (> 80 places) avec cuisine équipée + mise à disposition de vaisselle pour 50 pers.
- Une salle "cafet'" équipée d'un bar ouvert sur une grande terrasse en bois (sud-ouest) de 80 m² ; ces 2 salles sont séparées par un rideau amovible qui peut être ouvert et ne faire qu’une grande salle ! (sur demande au préalable)

Détail couchage
25 lits simples – 6 lits gigognes - 12 lits superposés - Lit bébé et matériel sur demande

Location :Semaine / Week-end / Nuit
Formule(s) :Demi-Pension / Pens. compl. / Gestion libre
Ouverture :Ouvert toute l'année

Classement / Label
ecolabel

Agrément
Jeunesse et sports
Education Nationale

Sécurité incendie
Avis favorable de la commission de sécurité
Dernière visite le 14 février 2024 (validité 3 ans)

Présentation
Le village vacances est situé à Murs-Erigné, au coeur de l’Anjou, un bâtiment datant de 2012 se situant au bord du Louet et proche de la Loire. Il est intégré au sein du Centre Bouëssé La Garenne, lieu d'accueil et d'encadrement de classes découvertes et centre de vacances, dans un site naturel. Tous les services de 1ère nécessité se situent aux alentours du centre (alimentaire, médicale).
Un bâtiment doté d'une grande terrasse en bois de 80 m², équipée de voiles d'ombrage en été, avec la visite d'écureuils régulièrement pour les observateurs !

Infos et réservation

Contact direct
Nom
Centre Bouëssé la Garenne
Sylvie MARSAULT
Loueur Professionnel

Langues parlées
Langues parlées

Téléphone
02.41.57.71.10

Portable
07.82.62.05.00

Envoyer un E-Mail
Site Internet
www.centrebouesse.com

Légendes planning

Tarifs

Pas de frais de commission


Gestion libre
Tarifs (hors ménage et taxe de séjour) :
Formule 55 couchages2344 € le week-end (vend-dimanche)
Formule 27 couchages1567 € le week-end (vend-dimanche)


Demi-pension
sur la base d'une semaine55 €/pers./jour


Pension complète
sur la base d'une semaine67 €/pers./jour


Autres infos
- Le village vacances est louable soit en formule 27 lits (6 chambres) avec salle + cuisine ou avec l'ensemble des chambres 55 lits (12 chambres) + cuisine + salle.
- Pour une location entre novembre et mars (hors vacances scolaires et jours fériés) réduction de 15% du montant total.
- Une salle avec sonorisation, en face du village vacances, peut être mise à disposition sur demande avec possibilité de musique jusqu'à 2h max.

Pour compléter un couchage plus important, possibilité d’un 2ème gite à proximité, au sein du Manoir La Garenne (33 couchages max) + possibilité de camping sur terrain à proximité.

Nous contacter pour plus d'informations sur ces différentes formules.
N’hésitez pas à revenir vers nous pour toute question ou visite.

Taxe de séjour :0,80 €/nuit/adulte
Location draps :Inclus dans tarif
Ménage fin de séjour :500 €
Animaux :Non admis
Chèques vacances :Oui

Les tarifs sont donnés à titre indicatif par l'annonceur. Pour obtenir le tarif précis aux dates souhaitées, merci de le contacter.
Équipements
Intérieur
Réfrigérateur-congélateur – Micro-ondes - Four - Plaque vitro-céramique (x1) - Vaisselle pour 50 pers. - Lave-vaisselle professionnel
Coin bibliothèque enfants/adultes côté chambres

Multimédia
Wifi - Vidéoprojecteur + écran dans la salle cafet'

Extérieur
Terrasse ombragée (voiles) avec tables/chaises extérieur – 1 table ping-pong

Autres infos
Etablissement accessible aux Personnes à Mobilité Réduite

Activités
Thématiques du gite
"Nature" - "Randonnées" - "Séjour scolaire" - "Séminaire" - "Vélo" - "Viticole"


Activités de plein air
Randonnée - Cyclo (Loire à vélo aux alentours) - VTT - Escalade

Activités aquatiques
Pêche - Baignade

Sites touristiques
Aquavita, centre aquatique - Terra Botanica - Château d'Angers - Zoo de Doué la Fontaine (3/4 d'heure) - Ville de Saumur et les troglodytes à 1h - Vignobles saumurois, Brissac, Layon, Aubance aux alentours



Cliquez sur une photo pour l'agrandir et ouvrir la galerie
Gite de groupe Village vacances Bouëssé La Garenne
Village vacances Bouëssé La Garenne Village vacances Bouëssé La Garenne Village vacances Bouëssé La Garenne Village vacances Bouëssé La Garenne Village vacances Bouëssé La Garenne Village vacances Bouëssé La Garenne Village vacances Bouëssé La Garenne Village vacances Bouëssé La Garenne Village vacances Bouëssé La Garenne



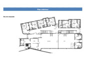
PLAN(S) DE LA STRUCTURE

Cliquez pour agrandir le plan
Agrandir le plan Agrandir le plan