Gites de groupe en Bourgogne > Saône et Loire > Centre de vacances Les Grelodots

Centre de vacances Les Grelodots

17 rue du docteur Roy - 71550 Anost - Saône et Loire - Ref 7610 - Sur notre site depuis 2026
Gite de groupe Centre de vacances Les Grelodots
Gite de groupe Centre de vacances Les Grelodots
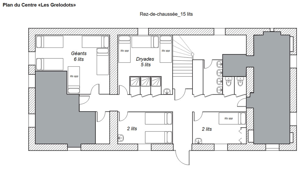
Album photos Plan de la structure Ajouter à votre selection
Capacité
Jusqu'à 57 personnes

Composition
Gîte de 900m² réparti sur deux bâtiments, l'un réservé au couchages proposant 12 chambres, 11 salles d'eau, 7 WC et l'autre, à 15 mètres, comprenant salle à manger et cuisine.
Dans ce second bâtiment, vous disposerez de plusieurs espaces de vie modulables, adaptés à la vie de groupe. La salle à manger peut accueillir jusqu’à 57 personnes et être aménagée différemment selon la taille du groupe, avec la possibilité de dégager un petit espace pour danser ou se réunir.
Deux pièces, au 1er et au 2ème étage, peuvent être aménagées en salle de jeux, de réunion ou d’activités pour petits groupes.
Une cuisine professionnelle entièrement équipée permet la préparation de repas pour l’ensemble du groupe en toute autonomie.

Détail couchage
32 lits simples - 12 lits superposés (x2 couchages)

Location :Semaine / Week-end / Nuit
Formule(s) :Pens. compl. / Gestion libre
Ouverture :Ouvert toute l'année

Agrément
Jeunesse et Sports
Education Nationale

Sécurité incendie
Avis favorable de la commission de sécurité
Dernière visite le 02 mai 2023 (validité 3 ans)

Présentation
Situé dans le Morvan, à Anost, le gîte de groupe Les Grelodots est un lieu pensé pour les rassemblements familiaux, cousinades et retrouvailles entre amis, dans un esprit simple, convivial et apaisant.

Le gîte est toujours en activité comme centre de colonies de vacances et de classes de découverte, gage d’un lieu sécurisé, fonctionnel et parfaitement adapté à l’accueil de groupes. Il ouvre ses portes aux groupes souhaitant se retrouver dans un cadre naturel, sans luxe mais avec l’essentiel : de l’espace, de la nature et du lien.

Ancien et actuel centre de séjour, Les Grelodots privilégie une ambiance familiale et bienveillante, idéale pour partager des repas, organiser la vie collective et profiter d’un jardin arboré propice au calme.

Le gîte bénéficie d’un emplacement privilégié : tout est accessible à pied (commerces, services, départs de randonnées), et les lacs du Morvan ainsi que de nombreux sentiers de balade se trouvent à proximité immédiate.

Un lieu adapté aux groupes respectueux, en quête de simplicité, de nature et de moments partagés, dans le respect du voisinage.

Infos et réservation

Contact direct
Nom
Samuel CARUSO
Loueur Professionnel

Langues parlées
Langues parlées

Téléphone
06.12.59.03.25

Envoyer un E-Mail
Site Internet
www.lesgrelodots.fr

Réseaux sociaux



Tarifs

Pas de frais de commission


Gestion libre
Nuità partir de 350 € la nuit
pour 16 personnes


Pension complète
Nuit60 €/personne


Taxe de séjour :0,60 €/nuit/adulte
Location draps :7 €/personne
Ménage fin de séjour :Inclus
Animaux :Admis
Chèques vacances :Oui

Les tarifs sont donnés à titre indicatif par l'annonceur. Pour obtenir le tarif précis aux dates souhaitées, merci de le contacter.
Équipements
Intérieur
Réfrigérateur - Congélateur - Plaques de cuisson - Four - Micro-ondes - Cuisinière - Vaisselle - Lave-vaisselle

Multimédia


Extérieur
Barbecue - Jeux enfants

Activités
Thématiques du gite
"Moto" - "Nature" - "Randonnées" - "Séjour scolaire" - "Séminaire" - "Vélo"


Activités de plein air
Randonnée - Cyclo - VTT - Tennis

Activités aquatiques
Pêche - Baignade - Voile

Autres activités
Cinéma

Sites touristiques
Le Parc naturel régional du Morvan, une nature préservée de forêts, collines et lacs - Le GR® de Pays Tour du Morvan - Circuits de randonnées autour du village - Nombreux sentiers pédestres et itinéraires VTT pour découvrir les paysages vallonnés du Morvan - Les Grands lacs du Morvan : lac des Settons, lac de Pannecière... - Site historique et archéologique de Bibracte – Mont Beuvray, site archéologique et son musée dédié à la civilisation gauloise - La ville d’Autun, et son riche patrimoine médiéval et romain (20km) - Patrimoine local à Anost : La Maison des Galvachers et la Chapelle Sainte-Claire de Velée



Cliquez sur une photo pour l'agrandir et ouvrir la galerie
Gite de groupe Centre de vacances Les Grelodots
Centre de vacances Les Grelodots Centre de vacances Les Grelodots Centre de vacances Les Grelodots Centre de vacances Les Grelodots Centre de vacances Les Grelodots Centre de vacances Les Grelodots Centre de vacances Les Grelodots



PLAN(S) DE LA STRUCTURE

Cliquez pour agrandir le plan
Agrandir le plan Agrandir le plan Agrandir le plan