Gite La Pie qui Chante

1 Queue d'Ageasse - 79100 Fontivillé - Deux-Sèvres - Ref 7598 - Sur notre site depuis 2026
Gite de groupe Gite La Pie qui Chante
Gite de groupe Gite La Pie qui Chante
Album photos Plan de la structure Ajouter à votre selection
Capacité
Jusqu'à 36 personnes

Composition
Le gîte doté de :
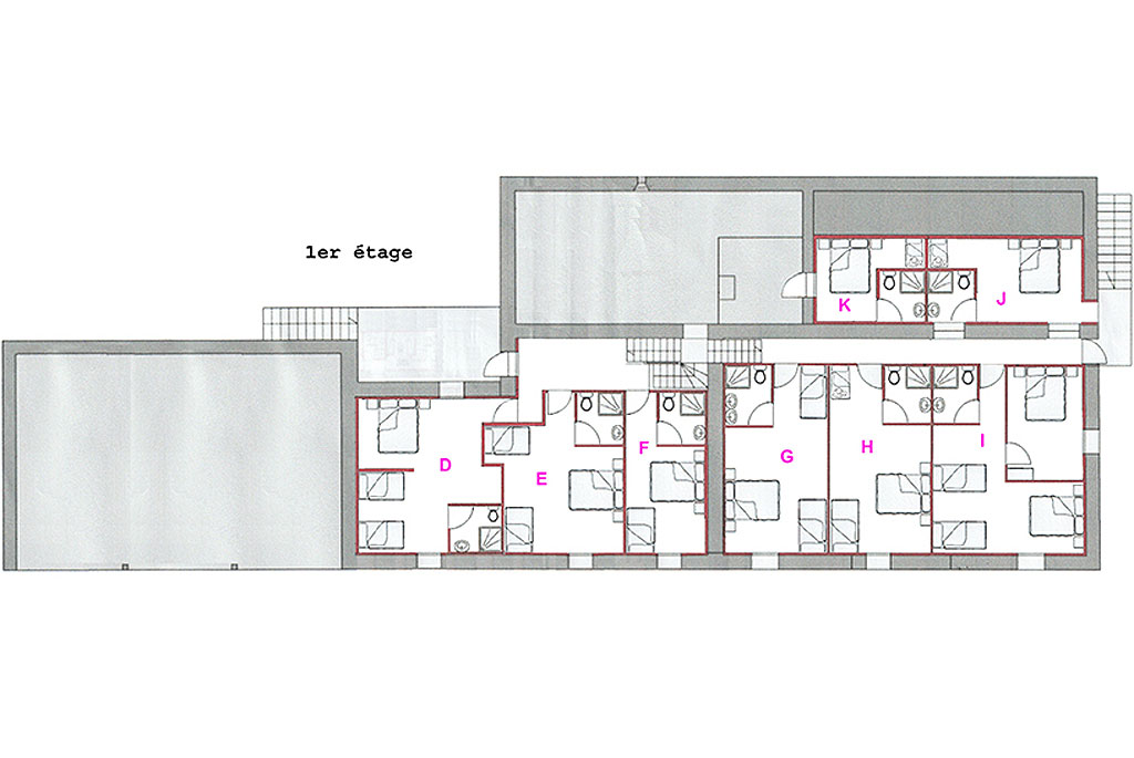
- 12 chambres, 11 salles d'eau et WC
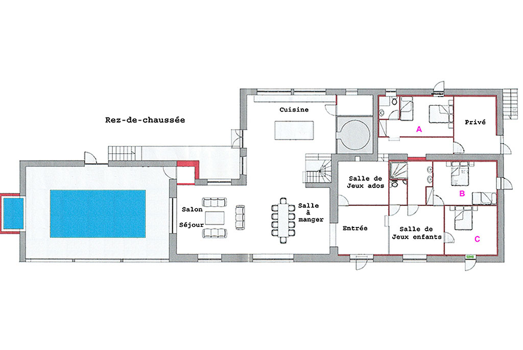
- 1 grande pièce à vivre avec cuisine toute équipée / salle à manger (40 personnes) / salon d'où vous pourrez profiter de la vue sur la piscine
- 1 piscine couverte et chauffée (4mx9m)
- 2 salles de jeux pour petits et grands
+
- 1 salle de réception, non attenante, de 300m² / capacité 165 personnes, avec cuisine professionnelle de 45m². Elle est équipée en conséquence.

Détail couchage
12 lits doubles - 12 lits simples - 4 lits bébé à disposition

Location :Semaine / Week-end
Formule(s) :Gestion libre
Ouverture :Ouvert toute l'année

Sécurité incendie
Avis favorable de la commission de sécurité
Dernière visite le 05 décembre 2025 (validité 5 ans)

Présentation
Notre grand gîte d'une capacité de 36 personnes et 4 bébés vous accueille toute l'année pour tous vos évènements : mariages, séminaires, cousinades, fêtes...
Il est composé de 10 chambres ayant chacune sa salle d'eau et ses toilettes et 2 chambres d'une capacité de 5 personnes, salle d'eau et toilettes pouvant accueillir les personnes à mobilité réduite.
La salle de réception (location possible indépendamment du gîte), située en face du gîte, a une superficie de 300m² et peut accueillir 165 personnes. Elle est équipée d'une cuisine professionnelle de 45m².
En extérieur, vous disposez d'un auvent, d'un grand parking, terrain de pétanque et de foot.

Infos et réservation

Contact direct
Nom
Jean-Christophe GAUDINEAU
Loueur Particulier

Langues parlées
Langues parlées

Téléphone
06.16.82.64.13

Envoyer un E-Mail
Site Internet
gigagite.com

Réseaux sociaux



Tarifs

Pas de frais de commission


Gestion libre
Week-end Basse Saison3000 €
Week-end Haute Saison4000 €
Location de la salle de réception1000 €



Autres infos
Le linge de lit est fourni ainsi que le linge de salle de bain et de cuisine.
Le ménage est compris.
Pour tous renseignements, veuillez nous contacter, nous serons ravis de vous répondre.

Taxe de séjour :Non incluse
Location draps :Inclus
Ménage fin de séjour :Inclus
Animaux :Non admis
Chèques vacances :Non renseigné

Les tarifs sont donnés à titre indicatif par l'annonceur. Pour obtenir le tarif précis aux dates souhaitées, merci de le contacter.
Équipements
Intérieur
Réfrigérateur (x2 dont frigo américain) - Congélateur à tiroir - Plaques induction (x2) - Hotte intégrée - Fours électriques (x2) - Micro-ondes - Bouilloire - Cafetières à filtres (x2) - Grille pain - Fouet et mixeur électriques - Vaisselle 40 pers. - Grands faitout
Lave-vaisselle - Lave-linge
Climatisation - Salle de jeux - Baby-foot

Multimédia
Wifi - TV

Extérieur
Terrasse - Salon de jardin - Barbecue

Autres infos
Établissement accessible PMR

Activités
Thématiques du gite
"Nature" - "Séminaire" - "Velo"


Activités de plein air
Randonnée - Cyclo - VTT - Équitation

Activités aquatiques
Baignade

Autres activités
Cinéma - Bowling

Sites touristiques
La Triade romane de melle (10 min) - Les mines d'argent à Melle (10 min) - Le zoodyssée (40 min) - La vallée des singes (40 min) - Le marais poitevin (50 min) - Poitiers et le futuroscope (1h) - La Rochelle (1h) - Le puy du fou (1h30)



Cliquez sur une photo pour l'agrandir et ouvrir la galerie
Gite de groupe Gite La Pie qui Chante
Gite La Pie qui Chante Gite La Pie qui Chante Gite La Pie qui Chante Gite La Pie qui Chante Gite La Pie qui Chante Gite La Pie qui Chante Gite La Pie qui Chante Gite La Pie qui Chante Gite La Pie qui Chante Gite La Pie qui Chante Gite La Pie qui Chante



PLAN(S) DE LA STRUCTURE

Cliquez pour agrandir le plan
Agrandir le plan Agrandir le plan